Nhà Hiện Đại 2 Tầng Mái Ngói Và Tôn - 13,5x10 - Nam Định

Mục lục

    Nhà Hiện Đại 2 Tầng Mái Ngói Và Tôn - 13,5x10 - Nam Định: Giải Pháp Kiến Trúc Đột Phá

    Trong bối cảnh đô thị hóa nhanh chóng tại Việt Nam, đặc biệt là ở các tỉnh có tốc độ phát triển mạnh như Nam Định, nhu cầu về một không gian sống vừa tiện nghi, hiện đại, lại vừa tối ưu chi phí đang trở nên cấp thiết hơn bao giờ hết. Gia chủ Nam Định tìm kiếm những mẫu nhà không chỉ đẹp mắt mà còn phải phù hợp với điều kiện khí hậu đặc trưng và diện tích đất vừa phải. Chính vì thế, giải pháp thiết kế Nhà Hiện Đại 2 Tầng Mái Ngói Và Tôn - 13,5x10 - Nam Định đã nổi lên như một xu hướng đột phá, cân bằng hoàn hảo giữa thẩm mỹ, công năng và tính kinh tế.

    Thiết kế này không chỉ giải quyết bài toán về diện tích hẹp mà còn mang đến một phong cách kiến trúc độc đáo, khẳng định gu thẩm mỹ tinh tế của gia chủ. Hãy cùng tìm hiểu chi tiết về mẫu nhà đặc biệt này.

    Tổng quan Thiết kế 'Nhà Hiện Đại 2 Tầng' độc đáo tại Nam Định

    Giới thiệu về xu hướng nhà ở hiện đại và nhu cầu tại Nam Định

    Kiến trúc nhà ở tại Nam Định đang chuyển mình mạnh mẽ, thoát khỏi các khuôn mẫu truyền thống nặng nề, hướng tới sự tối giản, thông thoáng và tối ưu hóa diện tích sử dụng. Với quỹ đất ngày càng hạn hẹp, mô hình nhà 2 tầng trở thành lựa chọn lý tưởng cho các gia đình trung lưu và đa thế hệ:

    • Tối đa hóa công năng trên diện tích vừa phải: Diện tích 13,5x10m (135m²) là kích thước lý tưởng để tạo ra bốn đến năm phòng chức năng, đáp ứng đầy đủ nhu cầu sinh hoạt cho một gia đình từ 4-6 thành viên.
    • Phù hợp với nhịp sống năng động: Thiết kế hiện đại loại bỏ những chi tiết rườm rà, tập trung vào không gian mở, tạo sự kết nối giữa các thành viên.
    • Tính linh hoạt cao: Dễ dàng điều chỉnh bố cục nội thất và mở rộng không gian trong tương lai nếu cần.

    Điểm nhấn kiến trúc: Sự kết hợp hài hòa Mái Ngói và Tôn

    Sự kết hợp giữa Mái Ngói và Tôn trong mẫu Nhà Hiện Đại 2 Tầng Mái Ngói Và Tôn - 13,5x10 - Nam Định là một giải pháp kiến trúc đầy sáng tạo, nhằm mục tiêu tận dụng ưu điểm của cả hai loại vật liệu:

    1. Mái Ngói (Khu vực mặt tiền hoặc phần mái thấp):
      • Mang lại vẻ đẹp truyền thống, thân thiện, tạo điểm nhấn ấm áp và tính thẩm mỹ cao cho mặt tiền chính.
      • Cung cấp khả năng cách nhiệt tốt và độ bền màu vượt trội theo thời gian.
    2. Mái Tôn (Khu vực mái phẳng, mái tầng lửng hoặc phần mái sau):
      • Giúp giảm chi phí xây dựng và thi công nhanh chóng hơn so với mái ngói hoàn toàn.
      • Đơn giản hóa kết cấu, phù hợp với kiến trúc hiện đại, tạo nên các đường nét vuông vắn, mạnh mẽ.

    Sự hòa trộn này không chỉ tạo nên tính duy mỹ độc đáo mà còn đảm bảo hiệu quả kinh tế rõ rệt, đặc biệt quan trọng trong các dự án nhà ở tại Nam Định.

    Giải pháp Kiến trúc Tối ưu trên diện tích 13,5x10

    Diện tích 13,5x10m đặt ra thử thách về việc tổ chức không gian sao cho mọi góc nhà đều nhận được ánh sáng và gió tự nhiên, đồng thời đảm bảo sự riêng tư cần thiết.

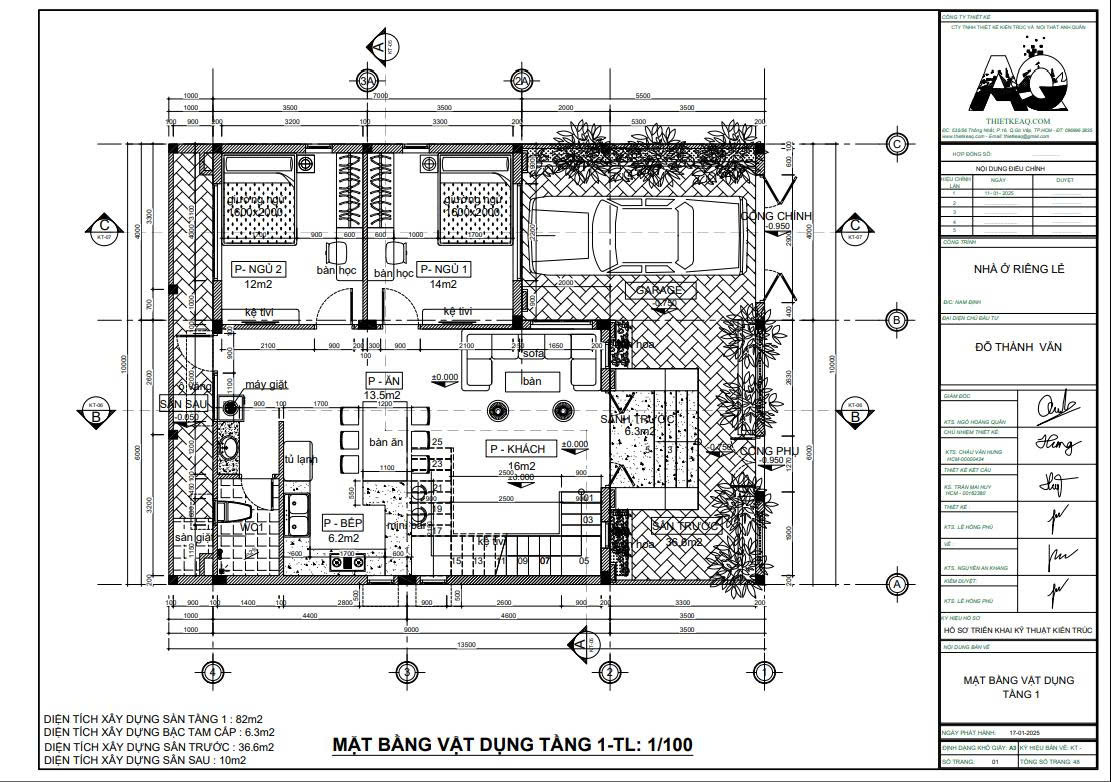
    Phân tích bố cục mặt bằng thông minh, tiện nghi (Tầng 1 và Tầng 2)

    Bố cục của mẫu Nhà Hiện Đại 2 Tầng Mái Ngói Và Tôn - 13,5x10 - Nam Định được thiết kế dựa trên nguyên tắc tối ưu hóa lưu thông và công năng:

    1. Tầng 1: Không gian sinh hoạt chung và tiện ích cơ bản

    • Phòng Khách và Bếp (Không gian mở): Liên thông nhằm tạo cảm giác rộng rãi, thoáng đãng, dễ dàng cho các hoạt động gia đình và tiếp khách.
    • Phòng Ngủ 1 (Phòng ngủ ông bà hoặc khách): Được bố trí ở vị trí kín đáo, thuận tiện di chuyển, hạn chế leo cầu thang.
    • WC Chung: Đặt dưới gầm cầu thang hoặc khu vực góc khuất để tiết kiệm diện tích và đảm bảo vệ sinh.

    2. Tầng 2: Không gian nghỉ ngơi và sinh hoạt riêng tư

    • Phòng Ngủ Master: Diện tích lớn, có ban công hoặc cửa sổ lớn, tích hợp phòng thay đồ và WC riêng.
    • Phòng Ngủ Thường (2-3 phòng): Đảm bảo đủ diện tích cho con cái hoặc thành viên khác, tận dụng tối đa ánh sáng mặt trời.
    • Phòng Thờ/Sinh hoạt chung: Đặt ở vị trí trang trọng, hoặc có thể sử dụng làm khu vực làm việc, đọc sách.
    • Sân phơi/Ban công: Vị trí lý tưởng để tận hưởng không khí trong lành và phục vụ nhu cầu giặt giũ.

    Tối đa hóa công năng và ánh sáng tự nhiên cho không gian sống

    Ánh sáng và không khí là yếu tố then chốt tạo nên chất lượng sống hiện đại. Các kiến trúc sư đã áp dụng các kỹ thuật thiết kế thông minh để tối ưu hóa hai yếu tố này:

    • Sử dụng Giếng Trời hoặc Khoảng thông tầng nhỏ: Đặt giữa nhà, khu vực cầu thang, giúp dẫn ánh sáng tự nhiên sâu vào trung tâm nhà 2 tầng.
    • Hệ thống Cửa kính lớn và Cửa trượt: Thay vì tường bê tông nặng nề, sử dụng cửa kính cường lực kết hợp khung nhôm Xingfa hiện đại, giúp mở rộng tầm nhìn và dễ dàng đón nắng gió.
    • Ban Công Lớn (Logia): Không chỉ là nơi thư giãn mà còn giúp chắn nắng trực tiếp, giảm nhiệt độ cho không gian bên trong.
    • Hướng gió và Đối lưu không khí: Bố trí cửa sổ đối diện nhau để luồng không khí được lưu thông xuyên suốt, đặc biệt quan trọng trong điều kiện thời tiết nóng ẩm tại Nam Định.

    Các yếu tố ngoại thất tạo nên sự khác biệt và thu hút

    Ngoại thất của mẫu Nhà Hiện Đại 2 Tầng Mái Ngói Và Tôn - 13,5x10 - Nam Định nhấn mạnh sự tinh tế, lịch lãm, không quá phô trương nhưng vẫn để lại ấn tượng mạnh mẽ:

    1. Màu sắc chủ đạo: Sử dụng tông màu trắng, xám nhạt hoặc be (cream), tạo nên sự sang trọng, hiện đại và dễ dàng kết hợp với các vật liệu trang trí khác.
    2. Vật liệu mặt tiền: Kết hợp hài hòa giữa bê tông thô, gạch ốp tường giả đá hoặc gỗ công nghiệp ngoài trời (sơn giả gỗ), tạo chiều sâu và độ tương phản cho mặt tiền.
    3. Hệ thống bồn hoa và cây xanh: Bố trí tại ban công, sân thượng hoặc các góc tường ngoại thất, mang lại sức sống và giảm bớt sự cứng nhắc của các khối kiến trúc.
    4. Hệ đèn chiếu sáng ngoại thất: Thiết kế âm trần hoặc đèn hắt sáng tạo điểm nhấn cho các mảng tường, làm nổi bật kiến trúc Nhà Hiện Đại 2 Tầng Mái Ngói Và Tôn - 13,5x10 - Nam Định vào ban đêm.

    Giá trị Bền vững và Ưu điểm Vượt trội của Mái Ngói và Tôn

    Quyết định lựa chọn vật liệu mái không chỉ ảnh hưởng đến thẩm mỹ mà còn quyết định đến tuổi thọ và khả năng chống chịu của công trình. Sự kết hợp giữa mái ngói và tôn là một chiến lược bền vững, đặc biệt phù hợp với đặc thù xây dựng tại Nam Định.

    Cân bằng giữa thẩm mỹ truyền thống và hiệu quả kinh tế

    Thiết kế thông minh này cho phép gia chủ tối ưu hóa ngân sách mà vẫn giữ được giá trị thẩm mỹ mong muốn:

    • Lợi ích kinh tế của Mái Tôn: Giảm thiểu chi phí vật liệu khung kèo và nhân công lợp mái so với việc lợp ngói toàn bộ. Đây là yếu tố quyết định cho một căn Nhà Hiện Đại 2 Tầng Mái Ngói Và Tôn - 13,5x10 - Nam Định với ngân sách hợp lý.
    • Tăng giá trị thẩm mỹ: Mái ngói vẫn được sử dụng tại các vị trí dễ thấy như mái hiên, mái cổng, giữ lại nét duyên dáng và truyền thống mà nhiều gia chủ Nam Định yêu thích.
    • Tiện lợi trong thi công: Mái tôn cho phép độ dốc nhỏ hơn, phù hợp với kiến trúc phẳng và hiện đại, giúp tối ưu hóa chiều cao công trình.

    Khả năng chống chịu thời tiết đặc trưng của khu vực Nam Định

    Nam Định là khu vực chịu ảnh hưởng của bão và thời tiết nồm ẩm. Do đó, yêu cầu về độ bền và khả năng cách nhiệt của vật liệu mái là rất cao:

    1. Chống chịu gió bão: Mái tôn hiện đại (có sóng lớn, liên kết chặt chẽ) khi được thi công đúng kỹ thuật có khả năng chịu lực gió tốt hơn một số loại ngói truyền thống.
    2. Cách nhiệt hiệu quả: Sử dụng tôn cách nhiệt 3 lớp (Tôn + PU + Bạc/Tôn) kết hợp với lớp trần thạch cao sẽ giúp giảm nhiệt độ đáng kể, chống nóng hiệu quả trong mùa hè khắc nghiệt của miền Bắc.
    3. Chống thấm và chống rêu mốc: Cả ngói và tôn đều có khả năng thoát nước nhanh, giảm thiểu tình trạng rêu mốc, giữ gìn vẻ đẹp lâu dài cho công trình.

    Lợi ích về tuổi thọ công trình và chi phí bảo trì lâu dài

    Việc đầu tư ban đầu vào vật liệu chất lượng cao sẽ mang lại lợi ích lâu dài, giảm thiểu gánh nặng bảo trì cho gia chủ của mẫu Nhà Hiện Đại 2 Tầng Mái Ngói Và Tôn - 13,5x10 - Nam Định:

    • Tuổi thọ vật liệu cao: Ngói ceramic hoặc ngói màu hiện đại có tuổi thọ lên đến 30-50 năm. Tôn chất lượng cao có lớp bảo vệ cũng đảm bảo độ bền màu và chống gỉ sét trong nhiều thập kỷ.
    • Dễ dàng sửa chữa: Nếu có hư hỏng cục bộ, việc thay thế tấm tôn hoặc viên ngói bị vỡ diễn ra nhanh chóng, đơn giản và ít tốn kém hơn so với mái bê tông dốc.
    • Giảm chi phí năng lượng: Khả năng cách nhiệt tốt đồng nghĩa với việc giảm thiểu sử dụng điều hòa, từ đó tiết kiệm chi phí điện năng hàng tháng cho gia đình.

    Đầu tư cho Chất lượng Sống Hiện Đại tại Nam Định

    Thiết kế Nhà Hiện Đại 2 Tầng Mái Ngói Và Tôn - 13,5x10 - Nam Định không chỉ là một công trình xây dựng; đó là sự đầu tư nghiêm túc vào chất lượng sống, tiện nghi và sự an tâm của gia đình.

    Khẳng định phong cách sống và gu thẩm mỹ của gia chủ

    Một ngôi nhà được thiết kế tỉ mỉ, khoa học là lời khẳng định rõ ràng nhất về gu thẩm mỹ của người sở hữu. Mẫu nhà này thể hiện:

    • Sự tinh tế trong lựa chọn vật liệu: Biết cách kết hợp hài hòa giữa truyền thống và hiện đại, không chạy theo trào lưu mà vẫn đảm bảo vẻ đẹp vượt thời gian.
    • Thích ứng với xu hướng kiến trúc xanh: Ưu tiên ánh sáng và không khí tự nhiên, tạo môi trường sống lành mạnh, gần gũi với thiên nhiên.

    Biến ý tưởng thành tổ ấm mơ ước: Tầm nhìn cho tương lai

    Để sở hữu một căn Nhà Hiện Đại 2 Tầng Mái Ngói Và Tôn - 13,5x10 - Nam Định hoàn hảo, việc lựa chọn đơn vị thiết kế và thi công uy tín là bước đi quan trọng nhất. Một tổ ấm mơ ước cần được xây dựng trên nền tảng kỹ thuật vững chắc và tầm nhìn dài hạn.

    Chúng tôi cam kết đồng hành cùng gia chủ Nam Định, từ khâu phác thảo ý tưởng đến khi hoàn thiện, đảm bảo mọi chi tiết thiết kế đều được hiện thực hóa một cách chuẩn xác và chất lượng nhất.

    Thiết kế Nhà Hiện Đại 2 Tầng Mái Ngói Và Tôn - 13,5x10 - Nam Định là sự dung hòa tuyệt vời giữa tính thực tiễn và nghệ thuật, đáp ứng hoàn hảo mọi yêu cầu khắt khe của cuộc sống hiện đại. Đây không chỉ là nơi để ở mà còn là không gian thư giãn, nuôi dưỡng và khẳng định đẳng cấp sống. Nếu quý vị đang tìm kiếm một giải pháp kiến trúc tối ưu công năng, bền vững với chi phí hợp lý tại Nam Định, hãy liên hệ ngay với đội ngũ chuyên gia của chúng tôi để được tư vấn chi tiết và biến ngôi nhà mơ ước của mình thành hiện thực ngay hôm nay.

    Thiết Kế & Xây Dựng AQ luôn sẵn sàng lắng nghe và hỗ trợ bạn! Hãy liên hệ với chúng tôi để nhận được giải pháp tối ưu cho căn nhà của bạn

    Thông tin liên hệ: Công ty TNHH Thiết Kế Kiến Trúc và Trang Trí Nội Thất AQ

    Hotline: 0707472222

    Địa chỉ trụ sở:439/8/17 Đường số 10 phường 8 Quận Gò Vấp Thành phố Hồ Chí Minh

    Chi Nhánh 1: 142 Điện Biên Phủ, phường Phước Nguyên Thành Phố Bà Rịa,BRVT

    Chi Nhánh 2: Km68,X.Eatyh,H.Eakar,Đắc Lắk

    Thiết kế khác
    Hotline
    Zalo
    Mess
    Chỉ đường